rotate

Rotate your device back to portrait Mode!

Land For Sale at SEVERN in Hamilton, Ontario

4 Sale ID #498266
Updated 12 Mar 2026

Asking Price

$549,900

Cap Rate help The capitalization rate is the rate of return on a real estate investment property based on the income that the property is expected to generate.

N/A

Lot Size

N/A

Building Size

N/A

Premise Summary

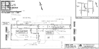
Great opportunity here at 29 Severn St. in Central Hamilton. This parcel of land is located one block away from Hamilton's fine restaurants and entertainment district, while located on a quiet, family-friendly street.  The City offers a wide range of development opportunities for this lot. - This Site Has lots of Potential . City is in High favour of High-Density Mixed-Use Developments in This Area. Close to the GO Station, LRT, Mobility Hub, Shopping center's, Schools, Hwy access and more! - Zoned with the City as: currently zoned H -  H/S 1310 - H/S 1310a - zoning verification to be done by buyer(s). There was an approved permit from the city to build  a 5-story mixed used complex that included commercial at/on grade level and 6 residential units on 4 floors above, which has now expired, but gives you an idea of the possibilities. An abutting parcel/building is located at 237 James St N is also available for purchase under separate ownership and representation (ML#40796237). The availability of the two side-by-side properties presents a rare opportunity. Acquiring the adjacent parcels may increase total land area and frontage, consolidate the lot lines and, paired with applicable zoning permissions, may unlock a unique potential development opportunity for the right group or individual. (id:39198)

  • MLS® : #40797994
  • Date Listed : 19 Jan 2026

Location

Province

Ontario

City

Hamilton

Address

Severn

Postal Code

L8R2L5

Location Highlights

N/A

Listed by

RE/MAX Real Estate Centre Inc. Ontario listing

Category

land

Property Information

Premise Status

N/A

With Accommodation

N/A

Tenancy

N/A

Lot Size

N/A

Available Space

N/A

Building Size

0

Year Built

N/A

Years Remaining in Current Lease Term

N/A

Renewal Options

N/A

Operational Information

Number of Working Owners

N/A

Current Owner - years

N/A

FF & E help Furniture, Fixtures & Equipment that remain with the business.

Not Included

Inventory Value - approximate help Consumable items the restaurant sells or uses such as food, beverages, cleaning supplies, etc.

Not Included

Franchise

N/A

Financial Information

Yearly Rate

$549,900

Asking Price

$549,900

Cap Rate help The capitalization rate is the rate of return on a real estate investment property based on the income that the property is expected to generate.

N/A

NOI help Net Operating Income equals all revenue from the property, minus all reasonably necessary operating expenses.

N/A

Gross Revenue- annual

N/A

Cash Flow - annual help 1 Take your “Net Income before Taxes”, then,
2 Add up all payments to: owners + interest + allowances for asset depreciation.
3 ADD together 1 + 2 = CASH FLOW (aka Seller’s Discretionary Earnings)

N/A

EBITDA help Earnings Before Interest, Taxes, Depreciation, Amortization.

N/A

Premises Size (square feet)

0

Other Information

Owner willing to Finance

N/A

Absentee Owner

N/A

Support and Training

Not Included

Growth and Expansion

N/A

Market Competition

N/A


Can't find what you're looking for?
Discover our vault of Non-MLS listings by working with our Licensed, Professional Buyer Advisors
help
Rate this listing for your dashboard.

Can't find what you're looking for?
Discover our vault of Non-MLS listings by working with our Licensed, Professional Buyer Advisors