BROKERS Register for FREE
BrokerStudio
Suite of tools & services
Benefits
Save Search
42.52 ACRES LAND ONLY. Fertile soil suitable to grow various crops, Blueberry and Vegetables. Take advantage of this high exposure, high traffic location with 1043.31 feet on Highway #17. Great location to build your dre
One of the Lower Mainland's most exclusive & rare offerings, this sprawling 56.5-acre estate features a fully custom-built luxury residence that defines elegance and serenity. Perfectly positioned adjacent to Hwy 17, thi
Unique opportunity to own WATERFRONT in Ladner-endless views year round - have your boat moored in front of your home! Only 30 minutes from Vancouver. New OCP for Ladner allows for potential to re-zone from I1S to MUPGE
Unique opportunity to own WATERFRONT in Ladner-endless views year round- have your boat moored in front of your home! Only 30 minutes from Vancouver. New OCP for Ladner allows for potential to re-zone from I1S to MUPGE
An exceptional opportunity in the heart of downtown Ladner. This concrete-built, open floor concept unit offers 1590 sq. ft. of flexible space in a C1 zoned building'perfect for professional office use or residential liv
An exceptional opportunity in the heart of downtown Ladner. This concrete-built unit, constructed in 2018, is zoned C1, allowing for a wide range of professional office uses or a comfortable residential conversion. Featu
Newly updated mixed use space of 2415 sq.ft. strata unit with front offices/rear loading layout. Lower level (892 sq.ft.) offices, boardroom with access to rear warehouse (539 sq ft) with 10'x12' grade level loading door
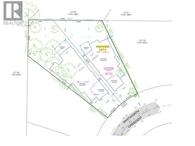
Stop searching for the perfect home and start building it. This is a rare opportunity to secure a prime building lot on Whitworth Crescent, one of Ladner's most prestigious and tightly held no-through streets. Spanning j
This warehouse lease offers a rare opportunity with two grade doors for easy access and a spacious 9,292 square feet of space, featuring a 22-foot high ceiling. It includes three-phase electrical service to meet diverse
Central Tsawwassen vacant flat lot ready to build on! RD3 zoned allows for over 4100 sq.ft home with a suite or garden cottage-buyer to verify with city for guidelines! Total 5820 sq.ft.- the lot is pie shaped (39'x122'x
Court Order Sale - Attach Schedule "A" to all offers. "SOLD AS IS-WHERE IS". Great strata industrial bay with large rear loading bay door and 18 foot ceiling height. This unit is 2,066 sq/ft footprint and a further 825 s
Investor alert with rare positive cash flow in today's market. This side-by-side legal duplex delivers scale, flexibility, and jaw-dropping north-westerly views of the Fraser River, Alex Fraser Bridge, and mountains. Off
Discover a rarely available 3,000-4,000 sqft warehouse space with a loading dock, located in the prestigious Annacis West Business Centre on Annacis Island, Delta. Just painted and move in ready, this property features a
Discover a truly exceptional opportunity to own this rare 2,481 sq.ft. warehouse strata unit featuring grade-level loading. Immaculately maintained and tastefully decorated, the property boasts four offices and a boardro
Freestanding Industrial building in frequent transit development area of Scott Road Corridor NCP. Currently being used for food production and distribution operations, this building is equipped with large coolers, freeze
This is a rare opportunity to secure an affordable RS7 ready to build lot in the sought-after Sunshine Hills area of Delta, with completion anticipated for Spring 2026. This premium lot is front-sloping and will be fully
Discovering the best deals on Commercial Properties in Delta, British Columbia requires thorough research. Take into account factors such as location, size, amenities, and future growth potential. Explore the three most popular offers:
Land at 64 , Land at 56 and Land at RIVER .
The average price of Commercial Properties in Delta, British Columbia is influenced by various factors. On average, prices range from $2,395,231. However, conducting a comprehensive market analysis is essential to grasp specific pricing trends in your desired area.
Find comprehensive information about Commercial Properties in Delta, British Columbia on Find Businesses 4 Sale! Explore our catalog of offers, and if you have any questions, feel free to contact us; we're here to help! Meanwhile, consider checking out the three newest listings:
Land at 64 , Land at 56 and Land at RIVER . .
Save this Listing
Register Now to get the most details on businesses/commercial properties.
×